Brocéliande
Déclaration préalable - Modification de façade d'une habitation
Pour ce projet plusieurs demandes :
- Réhausse partielle du toit
- Changement de fenêtre de toit
- Remplacement d’une porte d’entrée
- Installation d’un portail, portillon, muret
- Installation d’une terrasse
- Installation d’une pergola

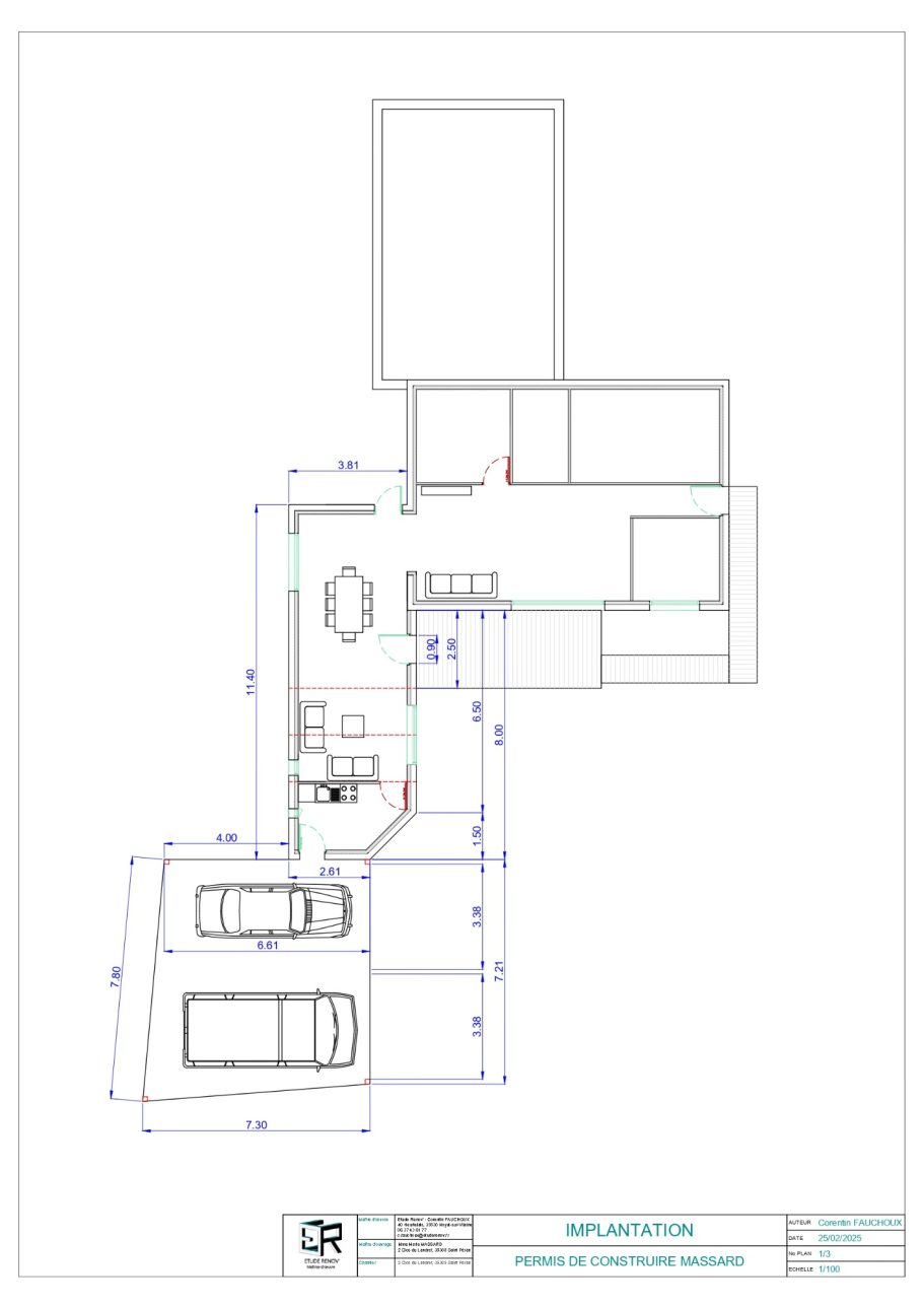
Extension
Conception et Permis de construire - Extension de maison
Nos clients rêvaient de plus d'espace, mais hésitaient entre agrandir leur salon/séjour ou créer une chambre supplémentaire.
Pour les aider à se projeter avant les travaux, nous avons réalisé des visuels 3D réalistes.
Après avoir étudié les deux options, nos clients ont optés pour l’extension du salon. L'avantage ? Plus d'espace pour recevoir amis et famille, et la possibilité de créer un coin jeux pour les enfants lorsqu'ils n'ont pas de visiteurs.
Réalisation de plans 2D pour une demande de chiffrage pour des artisans avant la dépose de permis de construire concernant l'extension du salon et l'extension du garage.

Broceliande II
Conception et Permis de constuire - Extension de maison + carport
L'objectif : intégrer l'extension dans le style et la fonctionnalité de l'existant.
Au programme : une pièce de 35 m² avec 3 zones distinctes :
– Un séjour spacieux pour recevoir une dizaine de personnes,
– Un salon de réception avec une ouverture cathédrale sur la charpente et deux grandes baies fixes sur les pignons,
– Une arrière-cuisine pratique pour les grandes réceptions,
Et pour compléter le tout, un carport de 50 m² pour abriter deux véhicules.
Réalisation de plans 2D et 3D pour une demande de chiffrage pour des artisans avant la dépose de permis de construire.

Longère
Maîtrise d'Œuvre - Rénovation complète d'une longère
Ancien corps de ferme avec une partie habitable au RDC + un étage non aménagé.
Objectif : Aménager l’ensemble du RDC & l’étage pour une habitation.
Les missions d’Etude Renov’:
Projet complet de A à Z comprenant :
- Prise de cotations de l’existant
- Plans d’aménagements 2D & 3D
- Déclarations d’urbanismes (permis de construire, déclarations préalables, déclaration de chantier ...)
- Estimatif du projet avec la consultation des entreprises
- Organisation et suivi de chantier
- Réception de chantier

Cave de Cesson
Maîtrise d'Œuvre - Aménagement d'une arrière boutique d'une cave à vin
Projet des clientes:
Redistribution d'une zone de stockage de bouteilles, d'un coin cuisine et local technique.
Installation d'une tireuse à bière professionnelle dans la boutique.
Les missions d'Etude Renov':
Projet complet de A à Z comprenant :
- Conception d'aménagement pour une utilisation fonctionnelle
- Prise de cotation
- Plans techniques 2D (aménagement, électrique, plafond,...)
- Visuel 3D pour la cuisine
- Description des travaux à effectuer (CCTP)
- Consultation et validation des entreprises
- Planning
- Organisation, suivi de chantier
- Réception de chantier

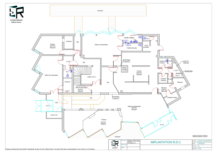
Restaurant
Prise de mesures et création de plans 2D - Aménagement d'un nouveau restaurant
Pour ce projet, l’objectif était de relever les dimensions de l'existant du rez-de-chaussée, des terrasses extérieures et l’étage (environs 535 m²), afin de fournir une base fiable pour l'aménagement du nouveau restaurant, suite à un changement de propriétaire.

Projet immobilier 1
Maîtrise d'œuvre et conseil investissement - Rénovation d'un appartement T3
Rénovation intérieur complète pour un investissement locatif.
Les missions :
Projet complet de A à Z comprenant :
- Conception d'aménagement pour une utilisation fonctionnelle pour un ou des locataires
- Prise de cotation
- Visuel 3D pour l'ensemble de l'appartement
- Nouvelle cuisine
- Modernisation de la salle de bain existante
- Changement de revêtement de sol, peintures sur l'ensemble de l'appartement
-Mise au norme électrique / plomberie
- Organisation, suivi de chantier
- Réception de chantier

Projet immobilier 2
Maîtrise d'oeuvre et conseil investissement - Rénovation d'un appartement T2
Rénovation intérieur complète pour un investissement locatif.
Les missions :
Projet complet de A à Z comprenant :
- Conception d'aménagement pour une utilisation fonctionnelle pour un ou des locataires
- Prise de cotation
- Visuel 3D pour l'ensemble de l'appartement
- Nouvelle cuisine
- Nouvelle salle de bain
- Changement de revêtement de sol, peintures sur l'ensemble de l'appartement
- Mise au norme électrique / plomberie
- Organisation, suivi de chantier
- Réception de chantier

Construction neuve
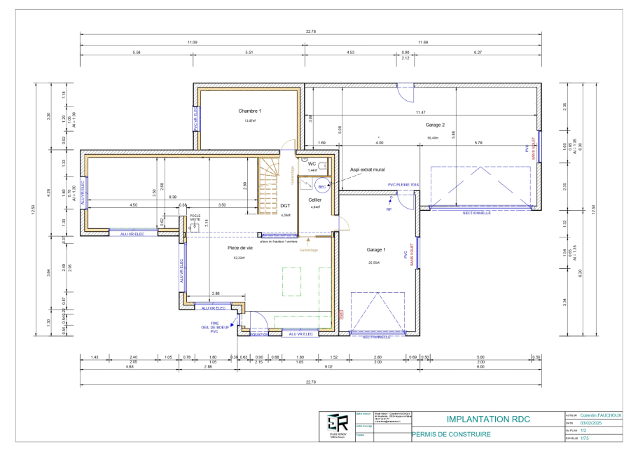
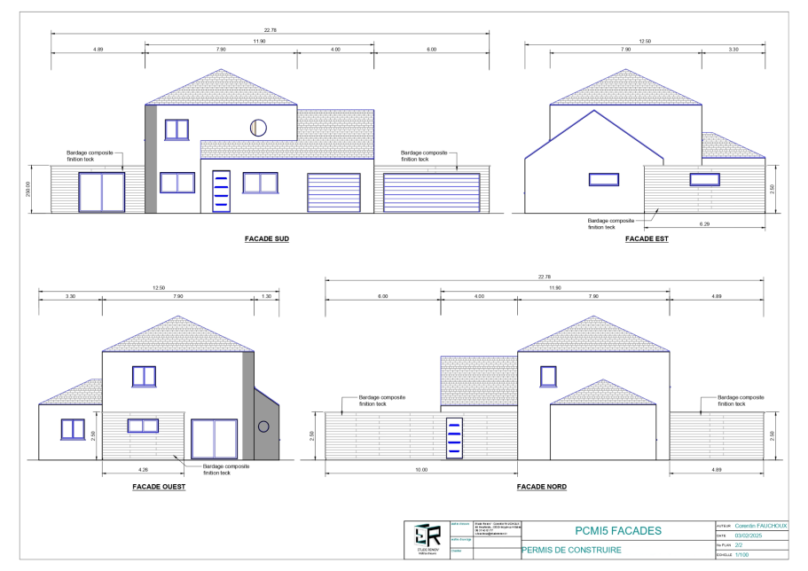
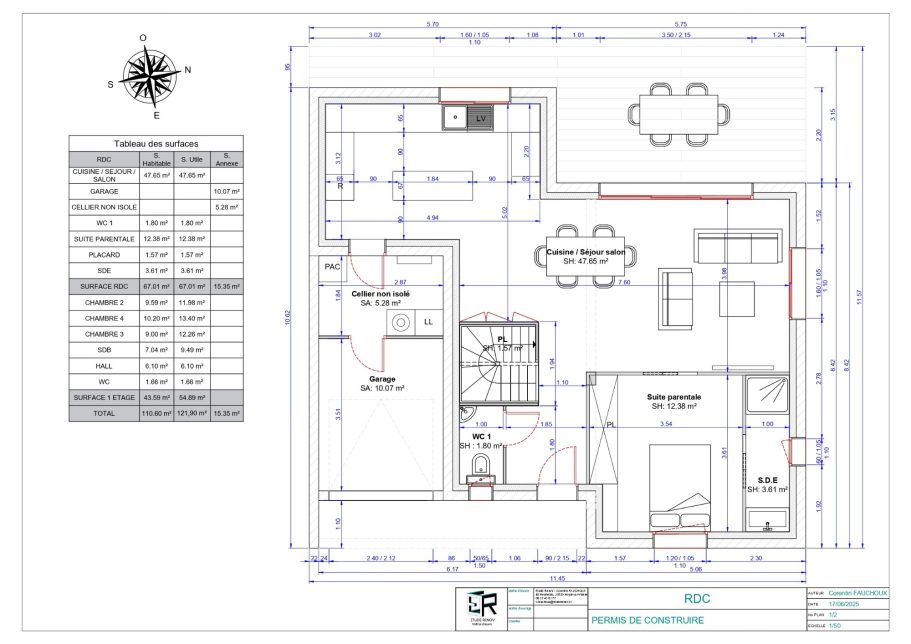
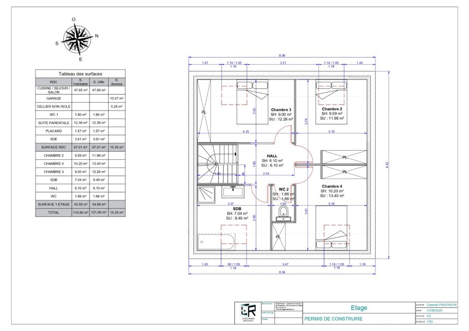
Conception et Permis de construire - Construction maison
Un projet clé en main pour une maison neuve de 110 m² !
Parce que chaque construction mérite une attention sur-mesure, nous avons récemment accompagné nos clients dans l’élaboration complète de leur dossier de permis de construire, pour une maison située dans un lotissement neuf.
De la première visite sur le terrain jusqu’au dépôt du permis de construire, Étude Rénov a accompagné ses clients à chaque étape, en prenant en charge les échanges avec l’urbanisme et en veillant au respect des règles.
Nous avons également conçu une maison à leur image : esthétique, fonctionnelle et fidèle à leurs envies.
Ce que nous avons pris en charge :
- Plans 2D détaillés du rez-de-chaussée et de l’étage
- Analyse du PLU et du règlement du lotissement
- Échanges avec la mairie, l’urbanisme et l’architecte urbaniste du secteur
- Dossier complet de permis de construire incluant :
- Plan de situation, masse, coupes, façades, toiture
- Modélisation 3D du projet
- Notice descriptive
- Formulaire CERFA dûment rempli
- Suivi de la RE2020 en partenariat avec un bureau d’étude thermique
- Étude du terrain sur place + photos
- Création du profil et dépôt du dossier en ligne

Cellier
Maîtrise d'oeuvre - Rénovation d'un cellier
Notre client souhaitait transformer son cellier existant, non isolé, en une véritable pièce de vie agréable et fonctionnelle.
Le rôle d’Étude Renov’ :
Nous avons accompagné le client à chaque étape du projet — définition des besoins, conception du plan, respect du budget, consultation et sélection des entreprises, suivi de chantier jusqu’à la réception des travaux.
L’ancien espace brut a laissé place à un cellier lumineux, isolé, chauffé et parfaitement intégré à la maison.
Le réseau électrique a été entièrement repensé afin d’alimenter en toute sécurité les appareils électroménagers et d’offrir un éclairage homogène et chaleureux.
Les murs ont été doublés et peints dans un ton blanc, apportant clarté et modernité à la pièce.
Enfin, le sol a été sublimé par un carrelage en grès cérame Loire Avorio 40x61 cm, pour une finition élégante et durable.
Un projet clé en main signé Étude Renov’, alliant esthétique, confort et fonctionnalité.
Artisans partenaires :
-Yadesservices
-LbEnergie
-Entreprise payet


















































